DTC U0401:00 [DSC HU/CM]


id040262887900

DTC
U0401:00
Signal error from PCM
DETECTION CONDITION
•  Error detected in signal from PCM via CAN communication
FAIL-SAFE FUNCTION
Refer to DTC TABLE. (See DTC TABLE [DSC HU/CM].)
POSSIBLE CAUSE
•  DTCs are stored in the PCM
•  DTCs are stored in the TCM
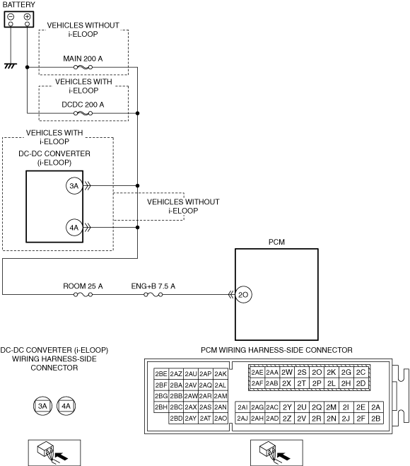
―  Short to ground in wiring harness between MAIN 200 A fuse and PCM terminal 2O
―  MAIN 200 A fuse and/or ROOM 25 A fuse and/or ENG+B 7.5 A fuse malfunction
―  Open circuit in wiring harness between battery positive terminal and PCM terminal 2O
•  Short to ground or open circuit in backup voltage circuit (with i-ELOOP)
―  Short to ground in wiring harness between DC-DC converter (i-ELOOP) terminal 4A and PCM terminal 2O
―  ROOM 25 A fuse and/or ENG+B 7.5 A fuse malfunction
―  Open circuit in wiring harness between DC-DC converter (i-ELOOP) terminal 4A and PCM terminal 2O
•  PCM malfunction
•  TCM malfunction


Diagnostic Procedure

Step

Inspection

Action

1
VERIFY DTCs
•  Are any DTCs present?
Yes
Go to applicable DTC inspection.
DTC troubleshooting completed, then go to the next step.
No
With i-ELOOP:
•  Go to Step 3.
Without i-ELOOP:
•  Go to the next step.
2
INSPECT BACKUP VOLTAGE CIRCUIT FOR SHORT TO GROUND OR OPEN CIRCUIT
•  Reconnect all disconnected connectors.
•  Verify the VPWR PID value.
•  Is the VPWR PID value B+?
Yes
Go to Step 4.
No
Inspect the MAIN 200 A fuse, ROOM 25 A fuse and ENG+B 7.5 A fuse.
•  If the fuse is blown:
―  Refer to the wiring diagram and verify whether or not there is a common connector between MAIN 200 A fuse and PCM terminal 2O.
If there is a common connector:
•  Determine the malfunctioning part by inspecting the common connector and the terminal for corrosion, damage, or pin disconnection, and the common wiring harness for a short to ground.
•  Repair or replace the malfunctioning part.
If there is no common connector:
•  Repair or replace the wiring harness which has a short to ground.
•  Replace the malfunctioning fuse.
•  If the fuse is damaged:
―  Replace the malfunctioning fuse.
•  If all fuses are normal:
―  Refer to the wiring diagram and verify whether or not there is a common connector between battery positive terminal and PCM terminal 2O.
If there is a common connector:
•  Determine the malfunctioning part by inspecting the common connector and the terminal for corrosion, damage, or pin disconnection, and the common wiring harness for an open circuit.
•  Repair or replace the malfunctioning part.
If there is no common connector:
•  Repair or replace the wiring harness which has an open circuit.
Go to Step 4.
3
INSPECT BACKUP VOLTAGE CIRCUIT FOR SHORT TO GROUND OR OPEN CIRCUIT
•  Reconnect all disconnected connectors.
•  Verify the VPWR PID value.
•  Is the VPWR PID value B+?
Yes
Go to the next step.
No
Remove the service plug.
Inspect the ROOM 25 A fuse and ENG+B 7.5 A fuse.
•  If the fuse is blown:
―  Refer to the wiring diagram and verify whether or not there is a common connector between ROOM 25 A fuse and PCM terminal 2O.
If there is a common connector:
•  Determine the malfunctioning location by inspecting the common connector and terminals for corrosion, damage, or disconnection and by inspecting the DC-DC converter (i-ELOOP) terminal 4A-related wiring harness for short to ground.
•  Repair or replace the malfunctioning part.
If there is no common connector:
•  Repair or replace the wiring harness which is shorted to ground, or the DC-DC converter (i-ELOOP) terminal 4A-related wiring harness.
•  Replace the malfunctioning fuse.
•  If the fuse is damaged:
―  Replace the malfunctioning fuse.
•  If all fuses are normal:
―  Refer to the wiring diagram and verify whether or not there is a common connector between DC-DC converter (i-ELOOP) terminal 4A and PCM terminal 2O.
If there is a common connector:
•  Determine the malfunctioning location by inspecting the common connector and terminals for corrosion, damage, or disconnection and by inspecting the DC-DC converter (i-ELOOP) terminal 4A-related wiring harness for an open circuit.
•  Repair or replace the malfunctioning part.
If there is no common connector:
•  Repair or replace the wiring harness which has an open circuit, or the DC-DC converter (i-ELOOP) terminal 4A-related wiring harness.
Reinstall the service plug.
Go to the next step.
4
DETERMINE IF MALFUNCTION IS PCM, TCM
•  Is the PCM normal?
Yes
Go to the next step.
No
Replace the PCM, then go to the next step.
5
VERIFY THAT THE SAME DTC IS NOT PRESENT
•  Clear the DTCs from the memory.
•  Are the same DTCs present?
Yes
Repeat the inspection from Step 1.
•  If the malfunction recurs, replace the control valve body, then go to the next step
Go to the next step.
No
Go to the next step.
6
VERIFY IF OTHER DTCs DISPLAYED
•  Are any other DTCs displayed?
Yes
Go to the applicable DTC inspection.
No
DTC troubleshooting completed.